Operation Hero's Hill

BarberMcMurry designed a community center for Operation Hero's Hill, a joint initiative between Knox County, Knoxville's Community Development Corporation, and Knox County Schools, to provide safe, stable and dignified housing for veterans.

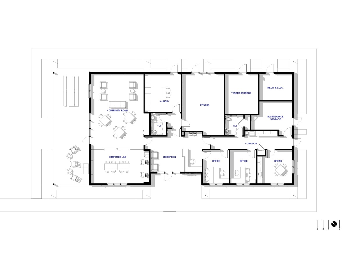
The community center has flexible gathering space for supportive programs, laundry facilities, and an exercise area for residents, as well as staff offices. Vaulted wood trusses create a covered outdoor gathering area at one end of the straightforward massing strategy. Inside, wood trusses reappear as a design element while simple material choices and massing allow for flexibility in uses.

 Along with the community center, the overall project will contain 20 tiny homes constructed by students from Knox County Schools' Career and Technical Education programs, in partnership with experienced contractors, designed by OYSK3. This innovative project not only provides housing for veterans, it offers students hands-on learning experiences that build real-world construction skills.    


Type: New Construction

Location: Knoxville, Tennessee

Services: Architecture, Interior Design

Use: Residential

Related Projects